閉じる

HOUSINGINFORMATION物件探し(マンション・一戸建て・土地)を買いたい

レスタージュ御池高瀬川 中古

価格
23,490万円
所在地
京都府京都市中京区河原町通二条下る二丁目下丸屋町413-4
交通
地下鉄東西線「京都市役所前」駅 徒歩1分京阪本線「三条」駅 徒歩3分阪急京都線「京都川原町」駅 徒歩10分
  • 区分
    居住用
  • 管理形態
    委託(通勤)
  • 管理費金額
    16200円
  • 修繕費積立金額
    20250円
  • 2沿線以上利用可
  • 高層階
  • LDK20畳以上
  • バリアフリー
  • 全居室収納
  • システムキッチン
  • 対面式キッチン
  • シャワー付洗面化粧台
  • 温水洗浄便座
  • 浴室1坪以上
  • バルコニー
  • 24時間ゴミ出し可
  • エレベーター
  • 宅配ボックス
  • TVモニタ付インターホン
  • スーパー徒歩10分以内
  • 眺望良好
  • 即入居可

おすすめポイント

東山連峰、鴨川、高瀬川を眼下に見下ろす眺望
五山の送し火(大文字)鑑賞可
ペット飼育可
大容量のカップボード有り
ペット飼育可
約20帖のリビング
<令和7年10月 フルリノベーション>
フローリング新規張替、壁・天井クロス張替、建具・玄関収納等新規交換、洗面化粧台新規交換、洗浄便座付きトイレ新規交換、ユニットバス新規交換、システムキッチン新規交換、照明器具新規交換、給湯器新規交換、エアコン一基新規交換、床暖房マット設置、

建物情報

間取りタイプ
部屋数
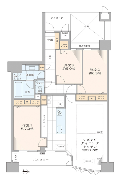
3LDK
バルコニー
有り
バルコニーの向き
バルコニー面積
8.12m2
専用庭面積
テラス面積
総戸数
55戸
築年月
2004年2月 
建物状況
中古
入居予定
即入居可
構造:主要
SRC
建物階
地上14階建て
所在階
13階部分
専有面積:
壁芯 90.01m2

土地情報

敷地権利
所有権のみ
駐車場
空き有り
用途地域
商業
その他制限事項

備考

組合活動協力金:2000円/月(外部区分所有者のみ)
駐輪場:(1台目無料、2台目以降 月300円~月1800円
バイク置き場:1000円/月
トランクルーム:480円/月
インターネット(オプテージ)

取引態様
仲介
情報公開日
2025年10月18日
0120-09-0325
営業時間:9:30~18:30 水曜定休