閉じる

HOUSINGINFORMATION物件探し(マンション・一戸建て・土地)を買いたい

アバンエスパス烏丸御池 中古

価格
20,990万円
所在地
京都府京都市中京区両替町通二条下る金吹町476
交通
地下鉄東西線「烏丸御池」駅 徒歩4分阪急京都線「烏丸」駅 徒歩14分地下鉄烏丸線「烏丸御池」駅 徒歩4分 
  • 区分
    居住用
  • 管理形態
    委託(通勤)
  • 管理費金額
    32150円
  • 修繕費積立金額
    23250円
  • 閑静な住宅地
  • 2沿線以上利用可
  • 角住戸
  • 最上階
  • 陽当り良好
  • LDK20畳以上
  • バリアフリー
  • 全居室フローリング
  • 床暖房
  • 全居室収納
  • ウォークインクローゼット
  • システムキッチン
  • 対面式キッチン
  • シャワー付洗面化粧台
  • 2面以上バルコニー
  • ルーフバルコニー
  • 屋上に水栓あり
  • 24時間ゴミ出し可
  • エレベーター
  • 宅配ボックス
  • TVモニタ付インターホン
  • スーパー徒歩10分以内
  • 即入居可

おすすめポイント

最上階x三方角住戸
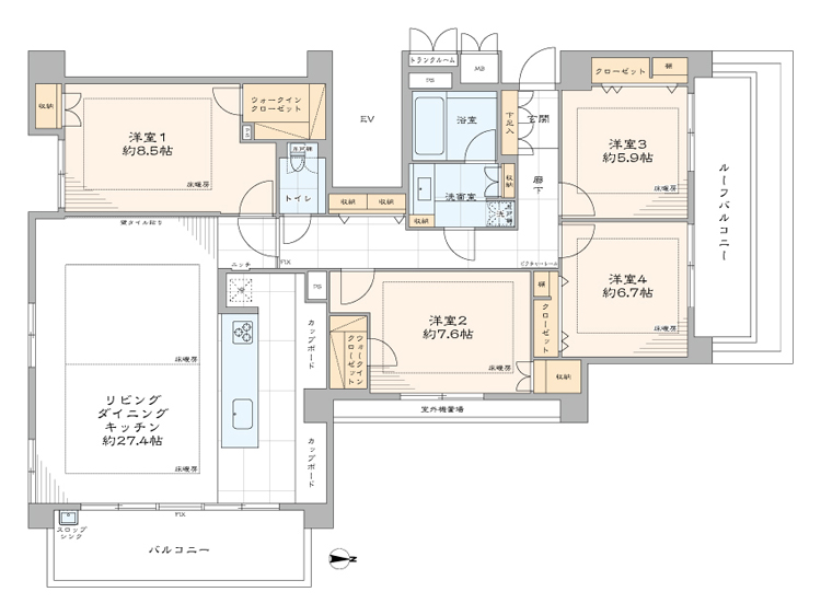
専有面積129.15㎡ 大型4LDK+2WIC
3沿線利用可能
五山の送り火(左大文字)の臨む眺望
ペット飼育可
令和7年11月リノベーション済み
フローリング新規張替/壁・天井クロス新規張替/建具・玄関収納等新規交換/洗面化粧台新規交換/洗浄便座付きタンクレストイレ新規交換/ユニットバス新規交換/システムキッチン新規交換/照明器具新規交換/給湯器新規交換/エアコン一基新規設置 

建物情報

間取りタイプ
部屋数
4LDK+2WIC
バルコニー
有り
バルコニーの向き
バルコニー面積
19.85m2
専用庭面積
テラス面積
総戸数
26戸
築年月
2007年10月
建物状況
中古
入居予定
即入居可
構造:主要
RC
建物階
地上7階建て
所在階
7階部分
専有面積:
壁芯 129.15m2

土地情報

敷地権利
所有権のみ
駐車場
有り 空き有り
用途地域
近隣商業
その他制限事項

備考

ペット飼育:可
駐車場:21000円~23000円/月
駐輪場:120円/月、登録シール代200円(台)
バイク置場:500円/月
インターネット:NTTメディアサプライ

取引態様
仲介
情報公開日
2025年12月16日
0120-09-0325
営業時間:9:30~18:30 水曜定休